Prodej rodinného domu 4+kk, Nižbor – zahrada, bazén, výhled na zámek

  • Cena:
    17 999 000 Kč (za nemovitost)
  • Poloha objektu
    samostatný
  • Druh objektu
    cihlová
  • Stav objektu
    dobrý
  • Počet podlaží v objektu
    2
  • Typ domu
    patrový
  • Zastavěná plocha
    116 m2
  • Užitná plocha
    170 m2
  • Plocha parcely
    1193 m2
  • Umístění objektu
    klidná část obce
  • Voda
    Vodovod
  • Odpad
    Kanalizace
  • Energetická náročnost budovy
    G - Mimořádně nehospodárná
  • Energetický ukazatel
    podle vyhlášky
    č. 264/2020 Sb.
  • Předzahrádka
    1193 m2
  • Počet parkovacích míst
    2

Mám zájem o bližší informace/prohlídku

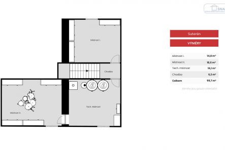
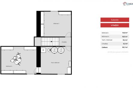
Představte si bydlení v místě, kde se každý den probouzíte s výhledem na zámek a okolní přírodu chráněné krajinné oblasti Křivoklátsko. Právě zde, v oblíbené obci Nižbor, nabízíme k prodeji pěkný rodinný dům o dispozici 4+kk se slunnou zahradou, bazénem a terasou s jedinečným výhledem. Místo, které spojuje klid přírody, prostor pro rodinný život a zároveň rychlou dostupnost do Berouna i Prahy. Patrový dům prošel v r. 2015 rekonstrukcí. Díky velkým oknům je interiér příjemně prosvětlený. Okna zároveň přirozeně propojují obytný prostor s rovinatou zahradou, kde se nachází bazén, prostorná terasa s výhledem na zámek a okolní krajinu, venkovní posezení s krbem a kryté parkovací stání pro dvě auta. Detailní dispozice domu je k dispozici v přiloženém půdorysu. Dům nabízí také velmi praktické technické zázemí, které zahrnuje odhlučněné nahrávací studio, dílnu a kotelnu vybavenou kombinovaným kotlem na plyn a dřevo. Měsíční náklady na vytápění: plyn 310 Kč, dřevo 2.080 Kč. Elektřina 2.270 Kč. PENB v přípravě, údaj bude aktualizován. Jednou z největších předností této nemovitosti je její jedinečná poloha. Dům se nachází v bezprostřední blízkosti zámku a na okraji CHKO Křivoklátsko, která nabízí nespočet možností pro procházky, cyklistiku i další volnočasové aktivity. Přímo od domu můžete vyrazit do lesů nebo se vydat malebnou cestou až k hradu Křivoklát. Každodenní bydlení zde tak přináší ideální kombinaci klidu, přírody a prostoru pro aktivní život, přičemž veškerá potřebná občanská vybavenost je v dosahu. Praha je dostupná přibližně do 30 minut jízdy, Beroun je vzdálený 8 km. Neváhejte nás kontaktovat pro bližší informace. Těšíme se s vámi na setkání.

Volejte na tel.:
Dotazy pište na:
reality@energon.cz
Kontakt na developera:
CJ Izolace s.r.o.
Příbramská 506
263 01 Dobříš

Tel.: +420 774 622 622
E-mail: reality@energon.cz
Kontakt na prodejce:
ENERGON reality, s.r.o.
Komenského nám. 412
263 01 Dobříš

Tel.: +420 774 622 622
E-mail: reality@energon.cz